產品展示

動中通指揮車選用二類汽車底盤,加裝柴油發電機組、配電系統、防雷及接地保護系統、平衡支撐系統等,為應急指揮系統提供運輸、工作保障。
外部布局設計
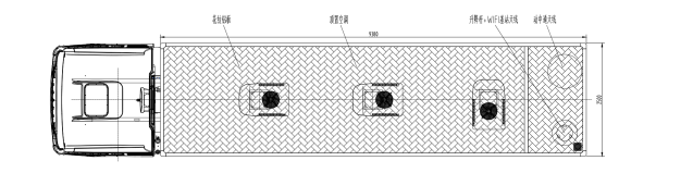
(1) 左、右、后部布局
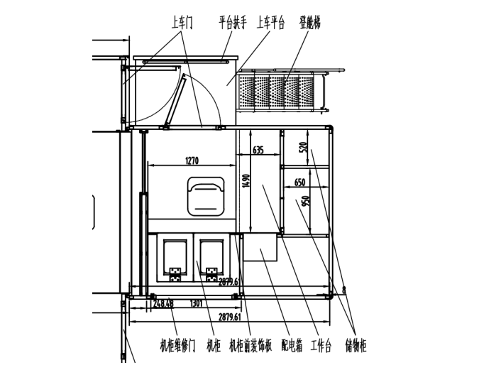
車輛廂體左右側前部為雙擴展會議艙,擴展艙長度為6米,擴展距離不小于1米,左右擴展艙后部分別設有應急門和登艙門;設備艙左右兩側分別設有機柜檢修門和登艙門,機柜檢修門后部設附件門,用于UPS電池維護和保養;油機艙兩側設有進出風口百葉窗。右側擴展艙后部設有上車平臺,平臺擴展距離為1米,平臺上設有扶手,上車平臺后部可掛登艙梯,便于上車。



車輛左、右、后側安裝場地照明燈。
車輛底部安裝四點式液壓支撐腿一套。
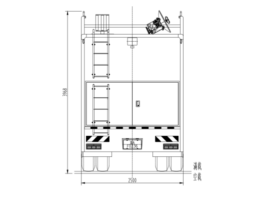
車尾安裝對開門和登頂梯。

(1) 頂部布局
車頂安裝從前到后依次為吸頂空調(3臺),動中通天線、電動桅桿;
為保證操作人員在車頂工作的安全性,本方案對車頂進行處理,表面鋪設花紋防滑鋁板,花紋鋁板采用粘接工藝固定,以盡量減少車外開孔,可減少后期帶來的隱患,周圍安裝一圈不銹鋼護欄;
在廂體頂部開設的過線孔全部穿過線彎頭,過線彎頭與廂部中間填充密封膠,以防止雨水的滲入;在布線完成后,對過線彎頭周邊再施以密封膠處理,確保車頂的密封性,同時對各線纜穿過彎頭處同樣施以密封膠處理,確艙內不會有漏水、滲水現象。
(1) 裙箱門
為了車體的美觀同時利用車體兩側的空間,在底盤兩側安裝有裙邊儲物艙,裙邊箱制作原則是不改變車輛最小離地間隙和離去角。
裙邊艙門上帶有可以鎖緊的把手,裙邊艙內框安裝有橡膠密封條,可以有效防止雨水進入。
在裙邊艙內安裝有線纜盤、土木工具、電源接口箱等各種配件,同時預留有部分空間,滿足用戶攜帶其它設施的需要。
(1) 登艙門
車廂上設置有進出的單開門、尾部雙開門和廂體左側的機柜維修門和附件門,同時為了提高車輛整體外觀性能,更好的利用底盤下部空間,在車下部兩側均增加裙箱門,并對艙門進行防水設計,整體外形平整、美觀。
登艙門安裝門限器、不銹鋼內藏式合頁,門內安裝密封條,具有極佳的防水、密封性能。
為了防止門框下部人員進出艙體碰傷門框,在門框下口邊增加防護不銹鋼板,解決了門下部積水、耐磨等問題。同時為了提高門鎖的使用性能,在門框下部安裝限位塊,使門閉合時鎖舌與鎖頭位置始終不變。門鎖全部采用扣蓋式汽車專用車鎖。
內部布局設計

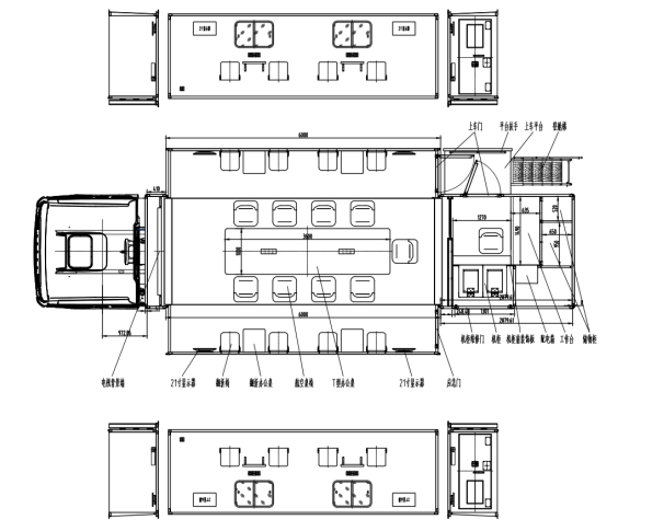
(1) 會議艙
在方艙前部為會議區,前部可容納17人現場參會,會議區中部為長條會議桌,會議桌設置1+8式座椅,擴展艙上左右側各設置4個翻折椅,每個翻折椅上設置有電源插座,左右兩側各設置1個網絡接口;會議區前部安裝1臺85寸主顯示器,兩側側拉廂側壁前后各安裝1臺21寸液晶顯示器;在指揮區前端車艙頂上吸頂安裝一臺一體化云臺攝像機。
(1) 設備艙
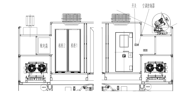
在方艙中部為技術區,與會議區采用隔斷分隔,隔斷上有通道門,技術區安裝2個標準19英寸機柜,高38U,深700mm,機柜前方為固定式操作臺面,會議區內頂部采用一臺頂置空調調節技術區內環境溫度。
設備區后側設內嵌式工作臺,工作臺尺寸約1490mm×635mm,工作臺左側立面安裝內嵌式標準13U機柜,機柜內安裝配電箱及各設備控制開關;工作臺后側設儲物柜,便于存放物品。


(1) 油機艙
發電機艙設置在儲物艙下方,在發電機艙兩側開有百葉結構形式通風窗,在后部設置有檢修門;油機下部設有導軌,檢修時可向車后抽拉,便于維修;在發電機艙內鋪設鋁合金防滑地板,地板上設置有落水口,保證發電機艙內不會積水;在發電機艙內壁鋪設隔音棉,用于發電機艙內的隔音處理;在發電機排氣口設置在艙體底部,以減小噪音,同時減少油煙對指揮操作人員的影響。


1.1.1 通信系統
作為動中通指揮車,車上配備了Ka波段動中通天線、SRT公網高清編碼器、便攜式近場無線覆蓋集成WIFI基站、可視化指揮調度系統平臺等。通過衛星信道,高標清3G/4G無線終端與指揮車和地面指揮中心進行連接。
動中通作為整個通信網絡系統中具有其靈活機動、可靠穩定的優勢,在行業應用中已使用的越來越廣泛,其優點也表漏無疑,本次通訊指揮車除了配備有衛星動中通系統還配備有可視化指揮調度平臺以及顯示大屏,可及時發送和回傳指揮中心的信息
1.1.1.1 照明系統
照明系統由車內照明燈、車內應急燈、機柜檢修燈、裙廂燈、場地照明燈等組成。
在各艙室設置頂置車廂專用照明燈,交流供電;照明燈的照度滿足操作和維護設備要求,即照度要求:離地0.8米水平面上100Lx。應急燈、場地照明燈、機柜檢修燈、裙廂燈等輔助照明燈具為24V直流電供電
1.1.1.1 車載空調
該空調是按國軍標GJB/Z9001-96質量體系標準推出的無源汽車車載空調器,該系列空調器主要針對低底盤特殊車輛的使用環境和安裝位置要求,結合多年來生產軍用空調的經驗,并融合了國外特種車載空調的先進設計理念,將主機進行了小型化設計,使之能懸掛在車輛底盤下面,且在空調系統的可靠性、工作環境等方面進行了優化設計,制冷、制熱迅速,使用環境溫度單冷電加熱型(-45°C~55°C),抗沖擊和抗振動能力高,防塵和防腐效果好
1.1.1 供電系統
供配電系統包括市電、UPS、柴油發電機組和蓄電池四種供電方式。在供電設計上,采用市電優先的原則。在市電供電情況時,市電通過外接電纜盤及車外電源壁盒接入車內綜合配電箱,通過綜合配電箱給系統用電設備供電,同時向充電機供電,給車內副電瓶進行充電,由蓄電池為車內直流用電設備提供電能;在無市電的情況下,柴油發電機組接入車內綜合配電箱為整個系統供電;在市電臨時斷電或市電與油機進行手動切換的間隙由UPS后備電池進行逆變220V交流電給車內設備供電,UPS供電時間大于15分鐘。
供配電系統主要由綜合配電箱來完成配電控制,綜合配電箱是全車配電系統的核心部分,采用交直流分開控制的方式,在綜合配電箱上配有多功能表能夠顯示交流電壓、電流及功率。每個操作開關上都有明晰的中文標注,簡單易懂便于操作。
1.1.1 機柜設備布局
整車設置有三個標準19英寸機柜,均安裝在操作間,其中兩個為38U的并聯機柜,另外一個為13U小機柜,機柜內設備安裝采用強弱電分開、交流直流設備分開的行業設備安裝標準來布放,其中操作桌臺面上方的13U標準小機柜用來安裝配電系統設備,上層為交流控制設備,下層為直流控制設備,38U并聯機柜中的左側機柜最底層用來安裝UPS主機,38U并聯機柜中的右側機柜用來按通信系統設備和音視頻設備,UPS后備電池組放置在13U機柜下方的操作臺面角落空間內;


18612540555







